682 Timber RunHavana, FL 32333




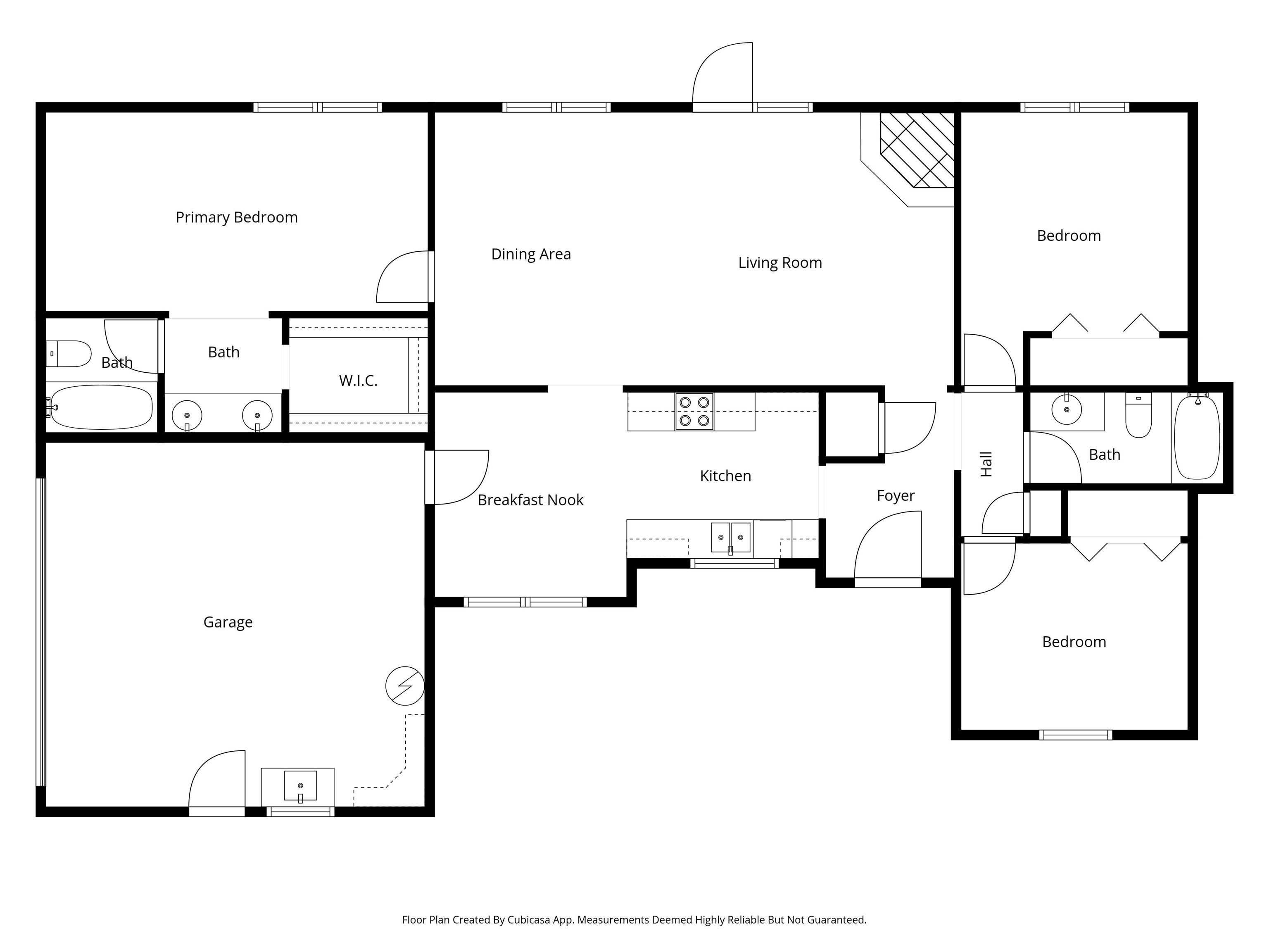
Nestled in the peaceful Reston Subdivision of Havana, just under 20 minutes to I-10 via North Monroe/HWY 27, this beautiful property offers the perfect blend of privacy, space, and convenience. Situated on over three acres, the land is a true highlight—featuring a thriving collection of grapefruit, lemon, satsuma, and orange trees, along with scuppernong grape vines and blueberry bushes, creating your own private orchard retreat. Outdoor living at its best with a spacious back deck and covered porch overlooking a serene, park-like backyard—perfect for relaxing evenings or entertaining guests. The property is well-equipped for hobbies, storage, or small business needs with four sheds/outbuildings (two with power), a metal 25x25 covered carport/storage area with water and electric, plus an additional 25x20 metal-covered space ideal for RV, boat, or camper parking. Inside, you’ll find beautiful engineered wood floors, new carpet, and fresh interior paint, offering a clean and inviting feel throughout. With just a few cosmetic updates, this home presents an incredible opportunity to customize and make it truly your own. If you’re looking for space, functionality, and a peaceful lifestyle with easy access to town, this one checks all the boxes. Sale Includes Parcel Id Number 3-09-2N-2W-0574-0000D-0060 vacant lot to the left. The 1.57 acre lot to the right of this property (3-09-2N-2W-0574-0000D-0040) is for sale for $35,000 and the 1.12 acres and 1 acre lots behind this property (3-09-2N-2W-0000-00211-0200) and (3-09-2N-2W-0000-00211-0400) are for sale for $25,000 each.
| 2 days ago | Listing updated with changes from the MLS® | |
| 2 days ago | Listing first seen on site |
This information is deemed reliable, but not guaranteed. PARTICIPANT'S ASSOCIATES AND SUBSCRIBERS ONLY AND IS NOT INTENDED FOR USAGE BY THE PUBLIC. UNDER NO CIRCUMSTANCES SHOULD THE INFORMATION CONTAINED HEREIN BE RELIED UPON BY ANY PERSON IN MAKING A DECISION OF PURCHASE. Copyright Capital Area Technology & REALTOR Services, Inc. All rights reserved.
Last checked 2026-04-12 12:09 AM EDT

Did you know? You can invite friends and family to your search. They can join your search, rate and discuss listings with you.